Realschule Aschauer Straße 9

Neubau einer Realschule, an neuem Standort, mit Sporthalle sowie einem Haus für Kinder.

Ansicht von Osten, Blick auf Schulhof und Mensa
BECKER LACOUR
Realschule Aschauer Straße 9

Baumaßnahme

Neubau einer Realschule, an neuem Standort, mit Sporthalle sowie einem Haus für Kinder.

Raumprogramm

Realschule, 6-zügig mit 6 Lernhäusern im 1. bis 3. Obergeschoss (36 Klassen), Fachlehrsälen, Verwaltung, 3-fach Sporthalle, Mensa als öffentliche Versammlungsstätte, Versorgungsküche, Tiefgarage und Hausmeisterwohnung, 3 Krippen- und 2 Kindergartengruppen

Oben im Bild: Realschule Aschauer Straße 9
BECKER LACOUR

Projektdaten

Lageplan
Lageplan

Standort
Aschauer Straße 9

Stadtbezirk
Ramersdorf – Perlach

Größe
Nutzungsfläche: 12.727 Quadratmeter
Brutto-Grundfläche: 20.220 Quadratmeter
Brutto-Rauminhalt: 91.150 Kubikmeter

Genehmigte Projektkosten gemäß Stadtratsbeschluss vom 16.08.2018
85,04 Millionen Euro

Baubeginn
IV. Quartal 2018

Baufertigstellung
III. Quartal 2021

Architekt (Objektplanung)
Leistungsphase 1-5: ArGe balda architekten, Fürstenfeldbruck
Fuchs und Rudolph Architekten Stadtplaner, München
Leistungsphase 6-9: BMO München - Baumanagement Oswald, München

Planung Freianlage
ArGe WES LandschaftsArchitektur, Berlin
Wendler Landschaftsarchitekten, München

Planungsunterlagen

Dies ist eine Bildergalerie in einem Slider. Mit den Vor- und Zurück-Kontrollelementen kann navigiert werden. Bei Klick öffnet sich ein Modal-Dialog, um das vergrößerte Bild mit weiteren Informationen anzuzeigen.

Aktuelle Meldung

21. September 2022

Der Neubau an der Aschauer Straße dient als neue Heimat für die Staatliche Marieluise-Fleißer-Realschule.

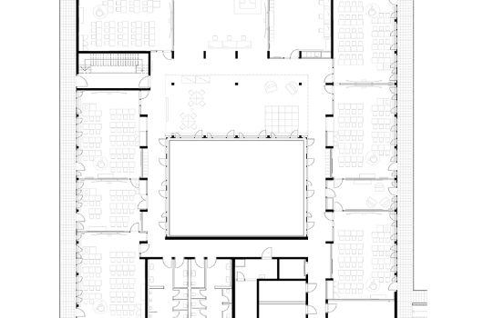
Drei versetzt angeordnete Baukörper umfassen jeweils vier Geschosse. Durch die Gebäudekonfiguration ergeben sich mehrere Hofsituationen. Nach Osten richtet sich der Pausenbereich mit Außensportflächen, nach Westen der zentrale Vorplatz. Verwaltung, Lehrerbereich, Aula und Mensa liegen im Erdgeschoss. In den Obergeschossen befinden sich die Fachklassen. Jeweils drei Lernhäuser sind um einen innen liegenden Hof organisiert.

Die Dreifachsporthalle im Norden ist zum Teil in die Erde versenkt. Die Tribüne wird ebenerdig betreten, während der Hallenbereich und die Umkleidekabinen im unteren Geschoss liegen. Im südlichen Baukörper liegt im Erdgeschoss das Haus für Kinder mit drei Krippen- und zwei Kindergartengruppen.

Dies ist eine Bildergalerie in einem Slider. Mit den Vor- und Zurück-Kontrollelementen kann navigiert werden. Bei Klick öffnet sich ein Modal-Dialog, um das vergrößerte Bild mit weiteren Informationen anzuzeigen.

25. März 2022

Das Bauvorhaben wurde trotz der pandemiebedingten Herausforderungen nach einer Bauzeit von zirka zwei Jahren und neun Monaten termin- und kostengerecht abgeschlossen.

Sechs Lernhäuser
Die 6-zügige Realschule an der Aschauer Straße bietet Platz für insgesamt 36 Klassen. Sie ist wie alle Schulneubauten in München nach dem Münchner Lernhauskonzept gebaut. In drei viergeschossigen Baukörpern sind insgesamt sechs Lernhäuser untergebracht. Die zentralen Mitten der Lernhäuser und die multifunktionalen Klassenzimmer mit digitalen Tafeln können auf vielfältige Art genutzt werden. Es gibt Bereiche zum Recherchieren, für Gruppenarbeiten oder einfach nur zum „Chillen“. Zentral im Erdgeschoss sind der Verwaltungsbereich, die Aula und die Mensa zu finden.

Die Schule bietet ein taktiles Leitsystem und barrierefreie WCs in jedem Stockwerk. Die Türen, Flure, Fachräume und Klassenzimmer sowie der Schulgarten auf dem Dach der Hausmeisterwohnung sind für Rollstuhlfahrer*innen geeignet. In der Aula, die auch als Versammlungsstätte genutzt werden kann, gibt es eine induktive Höranlage.

Pausenhof-, Spiel- und Aufenthaltsbereiche
Baumpflanzungen und vielfältige Grünbereiche wechseln sich ab mit attraktiven Pausenhof-, Spiel- und Aufenthaltsbereichen.

Haus für Kinder
Das angegliederte Haus für Kinder hat einen eigenen Eingang und bietet mit drei Krippen- und zwei Kindergartengruppen Plätze für insgesamt 86 Kinder. Die Freiflächen des Hauses für Kinder liegen optimal im Süden und Osten des Gebäudes und sind mit vielseitigen und spannenden Spielgeräten ausgestattet.

Kunst am Bau
Der Beitrag zur Kunst wurde im Rahmen von QUIVID, dem Kunst-am-Bau-Programm der Landeshauptstadt München realisiert. In einem nördlich gelegenen Lichthof platzierte der Künstler David Zink Yi aus Berlin eine Gruppe von vier Palmen aus Edelstahl, die eine idealisierte verkleinerte Landschaft darstellen und den dem Lehrerzimmer vorgelagerten Lichthof bereichern.

Dies ist eine Bildergalerie in einem Slider. Mit den Vor- und Zurück-Kontrollelementen kann navigiert werden. Bei Klick öffnet sich ein Modal-Dialog, um das vergrößerte Bild mit weiteren Informationen anzuzeigen.

08. Oktober 2020

Die Arbeiten an der Fassade sowie der Montage der Fluchtbalkone schreiten voran. Die Fenster sind alle, bis auf wenige Türen, gesetzt. Auf der Westseite (Straßenseite) wird die Klinkerfassade ausgeführt. Die Glasfaserbeton-Fassade der Sporthalle ist fertig. Das Dach ist dicht. Der Innenausbau läuft. Auf der Hofseite (Ostseite) starten die Arbeiten an den Außenanlagen.

Dies ist eine Bildergalerie in einem Slider. Mit den Vor- und Zurück-Kontrollelementen kann navigiert werden. Bei Klick öffnet sich ein Modal-Dialog, um das vergrößerte Bild mit weiteren Informationen anzuzeigen.

29. Januar 2020

Künftig soll die Staatliche Marieluise-Fleißer-Realschule, die derzeit in der Schwanthalerstraße 89 untergebracht ist, in den Neubau der Realschule an der Aschauer Straße 9 verlegt werden. Der 6-zügigen Realschule sind eine Dreifachsporthalle und ein Haus für Kinder mit den jeweiligen Außenanlagen und Sportflächen angegliedert. Der Entwurf sieht 4-geschossige Baukörper vor, in denen sich jeweils die Lernhäuser und Fachlehrsäle befinden. Die Bereiche mit Räumen für Lehrer, Verwaltung, Aula und Mensa liegen zentral zugänglich im Erdgeschoss. Die Aula kann z.B. auch für Bürgerversammlungen genutzt werden (Versammlungsstätte). Eine Tiefgarage für den Bedarf der Schule wird im Untergeschoss realisiert. Durch die versetzte Anordnung der Baukörper werden ansprechende Außenräume für Eingangshof, Pausenhof und Sportflächen geschaffen.

Ähnliche Artikel

This is a carousel with rotating cards. Use the previous and next buttons to navigate, and Enter to activate cards.

Grundschule St.-Veit-Straße 46

Neubau einer Grundschule mit Sporthalle, Tiefgarage und Freisportflächen

Grund- und Mittelschule Rockefellerstraße 11

Neubau Grundschule und Mittelschule an der Rockefellerstraße 11 _ ehemalige Bernaysstraße 35

Gymnasien Siegfriedstraße und Karl-Theodor-Straße

Zukunft trifft Tradition: Historische Gymnasien umfassend modernisiert

Gymnasium Gmunder Straße

Neubau eines sechszügigen Gymnasiums mit Sporthalle, Tiefgarage und Nebengebäude

Grundschule Emmy-Noether-Straße

Neubau einer Grundschule mit Sporthalle, Tiefgarage und Haus für Kinder

Grundschule Welzenbachstraße

Erweiterung Grundschule am Amphionpark und Neubau des Sporttrakts