Münchberger Straße

Westlich der Salzburger Autobahn soll ein neues Quartier mit 230 langfristig bezahlbaren Wohnungen entstehen.

Projekt

Luftbild Planungsumgriff
LHM
Luftbild Planungsumgriff ©LHM

Auf der rund vier Hektar großen, unbebauten Fläche im Stadtbezirk Obergiesing-Fasangarten soll ein neues Quartier mit 230 bezahlbaren Wohnungen entstehen. Außerdem private und öffentliche Grünflächen sowie eine Kindertageseinrichtung mit je zwei Kindergarten- und Krippengruppen.

Das Planungsgebiet liegt zwischen der Autobahn A8 München-Salzburg und der Münchberger Straße, am östlichen Rand des 17. Stadtbezirks.

Städtebaulicher und landschaftsplanerischer Wettbewerb

Die Planung basiert auf der Überarbeitung des städtebaulichen und landschaftsplanerischen Wettbewerbs von 2016. Diesen entschieden die Münchner Planungsbüros Beer Bembé Dellinger Architekten und Stadtplaner mit Valentien + Valentien Landschaftsarchitekten und Stadtplaner für sich.

Entwurfskonzept

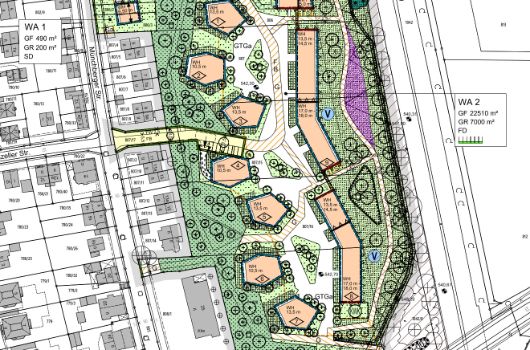
Der städtebauliche Entwurf sieht eine kompakte, schützende Bebauung zur Autobahn hin vor, die mit sieben Einzelgebäuden im Westen einen Anger bildet. Die Gebäude bieten attraktive, abwechslungsreiche Raumqualitäten. Im Übergang zum Bestand ist eine öffentliche Grünfläche geplant. Durch ein für alle nutzbares Wegenetz und neu gestaltete Freiflächen, die zur Autobahn von einem Wall geschützt werden, wird die Erholungs- und Aufenthaltsqualität im gesamten Gebiet deutlich verbessert.

Die Landeshauptstadt München hat inzwischen alle Flächen im Planungsgebiet erworben. Dadurch ist ein deutlich höherer Anteil an gefördertem und konzeptionellem Wohnungsbau mit einer langfristigen Bindung möglich.

Verfahrensstand und weiteres Vorgehen

Der Ausschuss für Stadtplanung und Bauordnung des Stadtrats hat am 6. Oktober 2021 die Satzung zu dem Bebauungsplan beschlossen. Die Beteiligung der Öffentlichkeit fand von 9. Juli bis 11. August 2020 statt.

Die Billigung der Flächennutzungsplanänderung (vorbehaltlicher Satzungsbeschluss) durch den Stadtrat erfolgte in der Vollversammlung am 22. Juli 2020. Die Beteiligung der Öffentlichkeit fand von 19. August bis 30. September 2020 statt.

Die neuen Äußerungen zu den Bauleitplänen werden im weiteren Verfahren erneut dem Stadtrat vorgelegt; dieser entscheidet dann im Rahmen des Satzungsbeschlusses darüber. Mit dem Satzungsbeschluss und nach Genehmigung der Flächennutzungsplanänderung durch die Regierung von Oberbayern ist das förmliche Verfahren abgeschlossen.

Aktuell

Gegen den Bebauungsplan wurde ein Normenkontrollantrag beim Bayerischen Verwaltungsgerichtshof eingereicht. Ferner wurde Antrag auf einstweiligen Rechtsschutz gestellt. Hierüber hat der VGH München mit Beschluss vom 18. März 2023 entschieden und den Bebauungsplan bis zur Entscheidung in der Hauptsache außer Vollzug gesetzt. Die Bekanntmachung der gerichtlichen Entscheidung erfolgte mit Amtsblatt der Landeshauptstadt München vom 30. April 2024.
Eine Bebauung der Grundstücke, die im Eigentum der Landeshauptstadt München stehen, ist somit vorerst nicht möglich.

Details zum Wettbewerb

1. Preis

Beer Bembé Dellinger Architekten und Stadtplaner, München, mit Valentien + Valentien Landschaftsarchitekten und Stadtplaner, München

Weitere Preise

2. Preis: Steidle Architekten, München, mit  mahl.gebhard.konzepte Landschaftsarchitekten und Stadtplaner, München

3. Preis: Nuyken von Oefele Architekten, München, mit toponauten LandschaftsarchitekturGesellschaft, Freising

Ausloberin

KLP GmbH & Co. KG

Lage

Das Planungsgebiet liegt zwischen der A8 München-Salzburg und der Münchberger Straße im Stadtbezirk 17 Obergiesing-Fasangarten.

Anlass und Ziel des Wettbewerbs

Auf der zirka vier Hektar großen unbebauten Fläche will die KLP GmbH & Co. KG, eine Projektgesellschaft der Optima und der IKR Kuschel Unternehmensgruppe, gemeinsam mit der Landeshauptstadt München ein neues Wohnquartier mit entsprechenden Freiflächen und der notwendigen Infrastruktur entwickeln. Dabei soll sowohl ein verträglicher Übergang zur kleinteiligen Bestandsbebauung gebildet als auch der Siedlungsrand nach Osten zur Autobahn arrondiert werden.

Eine besondere Herausforderung stellt der Umgang mit der östlich angrenzenden Autobahn A8 sowie der nördlich gelegenen Bahntrasse hinsichtlich auftretender Lärmbeeinträchtigungen dar. Sowohl zum Schutz der geplanten Wohngebäude als auch der dafür notwendigen Freiflächen sind geeignete Lärmschutzmaßnahmen in Form einer Lärmschutzbebauung oder als Wall-/Wandkonstruktion erforderlich. Beide Konzepte wurden grundsätzlich als möglich erachtet. Aufgabe des Wettbewerbs war es, die beste städtebauliche und landschaftsplanerische Lösung für diesen Ort zu entwickeln.

Würdigung des Preisgerichts (Auszug)

„Dem ersten Preisträger gelingt es in seinem Entwurf mit einer Lärmschutzbebauung zur Autobahn und sieben freistehenden Baukörpern mit insgesamt etwa 220 Wohnungen, einen schlüssigen Übergang zur Bestandsbebauung zu finden und gleichzeitig eine markante, differenzierte Raumkante zu formulieren.

Stadträumlich wird hier eine Lösung vorgeschlagen, die sich bewusst vom Bestand mit einer vier- bis fünfgeschossigen Schallschutzbebauung und punktförmigen Einzelhäusern absetzt.

Durch den Wohnpark mit Obstbäumen und Blumenwiesen im Anschluss an die Bestandsbebauung entsteht ein Raumangebot, das zu den Nachbarn „Luft“ lässt und Alt und Neu geschickt miteinander verbindet. Ganz im Kontrast dazu steht die deutlich rauer gestaltete Allmende zwischen der Lärmschutzbebauung und der Autobahn, die Raum für Urban-Gardening und individuelle Aneignung bietet.

Die Erschließungszone zwischen der geschlossenen Bebauung und den Einzelhäusern fängt den Individualverkehr an den zwei Zufahrten im Gebiet schnell ab und wird damit zu einer autofreien Zone mit einer attraktiven, abwechslungsreichen Raumqualität. Der Anger bietet gute Chancen für eine lebendige Nachbarschaft. Fuß- und Radwege vernetzen die Freiraumvielfalt untereinander.

Die in der Höhe gestaffelte Lärmschutzbebauung bietet funktionale Grundrisse, deren Aufenthaltsräume sich überwiegend nach Westen orientieren; die wenigen Räume nach Osten können mit technischen Möglichkeiten ausreichend vor dem Lärm geschützt werden.

Die frei geformten Punkthäuser im Westen weisen sehr attraktive, in der Mehrzahl über Eck organisierte Wohnungsgrundrisse auf und lassen gerade durch die unterschiedlichen Sichtbezüge viel Raum für Individualität und eine gute Adressbildung. Die hohe Anzahl an Wohnungen bedeutet in diesem Konzept keinen Qualitätsverlust. Die dafür optional vorgeschlagene Kindertagesstätte ist funktional richtig an der Münchberger Straße situiert.

Insgesamt weist diese Arbeit einen sehr eigenständigen Entwurfsansatz auf, der als neuer Stadtraum im Inneren hohe Wohn- und Aufenthaltsqualität verspricht. Durch gekonnte räumliche Zonierung des Wohnquartiers und der Freiflächen wird „Raum für Alle“ geschaffen und werden so neue Nachbarschaften ermöglicht."

Empfehlung des Preisgerichts

„Das Preisgericht empfiehlt, das mit dem ersten Preis ausgezeichnete Projekt zur Grundlage der weiteren Entwicklung des Planungsgebietes zu machen. Es wird betont, dass eine qualitätvolle Gestaltung der Einzelgebäude von großer Bedeutung für das Gelingen des Konzepts ist."

Preisgerichtssitzung

20. Dezember 2016

Koordination

bgsm Architekten Stadtplaner, München

 

Bilder

Dies ist eine Bildergalerie in einem Slider. Mit den Vor- und Zurück-Kontrollelementen kann navigiert werden. Bei Klick öffnet sich ein Modal-Dialog, um das vergrößerte Bild mit weiteren Informationen anzuzeigen.

Chronologie

11/2022 Inkrafttreten des Bebauungsplans
10/2021 Satzungsbeschluss des Stadtrats
08 bis 09/2020 Beteiligung der Öffentlichkeit zur Flächennutzungsplanänderung
07 bis 08/2020 Beteiligung der Öffentlichkeit zum Bebauungsplan
04/2020 Billigungsbeschluss des Stadtrats
04 bis 05/2017 Frühzeitige Unterrichtung der Öffentlichkeit nach § 3 Abs. 1 BauGB
04 bis 05/2017 Beteiligung der Träger öffentlicher Belange
03/2017 Informationsveranstaltung zum Wettbewerb
12/2016 Preisgericht im Wettbewerb
10/2016 Auslobung städtebaulicher und landschaftsplanerischer Wettbewerb
09/2016 Eckdaten- und Aufstellungsbeschluss für den Bebauungsplan Nr. 2118

  • Referat für Stadtplanung und Bauordnung

    Stadtplanung - Planungsgruppe Bezirk Ost (Stadtbezirk 17, 18 und 19)

Ähnliche Artikel

This is a carousel with rotating cards. Use the previous and next buttons to navigate, and Enter to activate cards.

Münchner Norden

Rund um Feldmoching wird aktuell untersucht, ob und in welchem Umfang hier ein neues lebenswertes Stück Stadt entstehen kann.

Freiham

Der neue Stadtteil im Münchner Westen für über 25.000 Menschen

Neufreimann

5.500 Wohnungen für bis zu 15.000 Menschen auf den Flächen der ehemaligen Bayernkaserne

Münchner Nordosten

Im Münchner Nordosten entsteht ab den 2030er Jahren ein Zukunftsquartier für bis zu 30.000 Menschen.

Neues Leben auf dem PaketPost-Areal

Neues Wohn- und Geschäftsviertel an der Friedenheimer Brücke

Messestadt Riem

Der neue Stadtteil auf dem früheren Flughafengelände