Hort Burmesterstraße 19 a

Neubau eines Hortpavillons

Haupteingang

Baumaßnahme

Neubau eines Hortpavillons

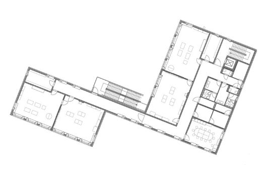
Raumprogramm

4 Hortgruppen, 4 Gruppenräume, Werkraum, Küche, 4 Hausaufgabenräume, Personal und Nebenräume

Projektdaten

Lageplan
Lageplan

Standort
Burmesterstraße 19 a

Stadtbezirk
Schwabing - Freimann

Größe
Nutzungsfläche: 918 Quadratmeter
Bruttogrundfläche: 1.608 Quadratmeter
Bruttorauminhalt: 5.991 Kubikmeter

Genehmigte Projektkosten gemäß Stadtratsbeschluss vom 25. Juli 2018
11,2 Millionen Euro

Baubeginn
IV. Quartal 2019

Baufertigstellung
III. Quartal 2020

Architekt (Objektplanung)
k.u.g. architekten, München

Planung Freianlagen
Kronenbitter Landschaftsarchitekten, München

Planungsunterlagen

Dies ist eine Bildergalerie in einem Slider. Mit den Vor- und Zurück-Kontrollelementen kann navigiert werden. Bei Klick öffnet sich ein Modal-Dialog, um das vergrößerte Bild mit weiteren Informationen anzuzeigen.

Aktuelle Meldung

14. September 2020

Die Inbetriebnahme ist erfolgt. Aktuell laufen die Arbeiten an den Außenanlagen.

Dies ist eine Bildergalerie in einem Slider. Mit den Vor- und Zurück-Kontrollelementen kann navigiert werden. Bei Klick öffnet sich ein Modal-Dialog, um das vergrößerte Bild mit weiteren Informationen anzuzeigen.

19. August 2020

Am Standort Burmesterstraße 19a wurde ein freistehendes Gebäude für 4 Kinderhortgruppen in Modulbauweise errichtet. Das Gebäude besteht aus einem zweigeschossigen und einem dreigeschossigen Baukörper, welches über einen zweigeschossigen Zwischenbau verbunden wird. Der Haupteingang befindet sich im östlichen Bereich. Vom Werk wurden tragende Stahlrahmenmodule, die auf der Baustelle miteinander verbunden wurden, im März geliefert. Der Ausbau sowohl Innen als auch Außen erfolgte zum größten Teil auf der Baustelle vor Ort.

Dies ist eine Bildergalerie in einem Slider. Mit den Vor- und Zurück-Kontrollelementen kann navigiert werden. Bei Klick öffnet sich ein Modal-Dialog, um das vergrößerte Bild mit weiteren Informationen anzuzeigen.

17. April 2020

Es startet der Innenausbau sowie die Arbeiten an der Fassade.

Dies ist eine Bildergalerie in einem Slider. Mit den Vor- und Zurück-Kontrollelementen kann navigiert werden. Bei Klick öffnet sich ein Modal-Dialog, um das vergrößerte Bild mit weiteren Informationen anzuzeigen.

20. März 2020

Der Hort besteht aus 86 tragenden Stahlrahmen-Modulen, welche innerhalb einer Woche geliefert und der Reihe nach aufgestellt werden. Mit der Anlieferung beginnt das Verkranen und die Montage der einzelnen, noch in Schutzfolie verpackten Module. Schon nach kurzer Zeit ist das Erdgeschoss sowie das 1.Obergeschoss errichtet.

Dies ist eine Bildergalerie in einem Slider. Mit den Vor- und Zurück-Kontrollelementen kann navigiert werden. Bei Klick öffnet sich ein Modal-Dialog, um das vergrößerte Bild mit weiteren Informationen anzuzeigen.

14. März 2020

Ein umlaufendes Gerüst wird aufgestellt, um alle Arbeiten an der Außenwand sowie am Dach des Gebäudes zu ermöglichen.

Dies ist eine Bildergalerie in einem Slider. Mit den Vor- und Zurück-Kontrollelementen kann navigiert werden. Bei Klick öffnet sich ein Modal-Dialog, um das vergrößerte Bild mit weiteren Informationen anzuzeigen.

15. Februar 2020

Die Bodenplatte samt Aufzugschacht ist betoniert und ausgehärtet.

Dies ist eine Bildergalerie in einem Slider. Mit den Vor- und Zurück-Kontrollelementen kann navigiert werden. Bei Klick öffnet sich ein Modal-Dialog, um das vergrößerte Bild mit weiteren Informationen anzuzeigen.

Ähnliche Artikel

This is a carousel with rotating cards. Use the previous and next buttons to navigate, and Enter to activate cards.

Grundschule St.-Veit-Straße 46

Neubau einer Grundschule mit Sporthalle, Tiefgarage und Freisportflächen

Grund- und Mittelschule Rockefellerstraße 11

Neubau Grundschule und Mittelschule an der Rockefellerstraße 11 _ ehemalige Bernaysstraße 35

Gymnasien Siegfriedstraße und Karl-Theodor-Straße

Zukunft trifft Tradition: Historische Gymnasien umfassend modernisiert

Gymnasium Gmunder Straße

Neubau eines sechszügigen Gymnasiums mit Sporthalle, Tiefgarage und Nebengebäude

Grundschule Emmy-Noether-Straße

Neubau einer Grundschule mit Sporthalle, Tiefgarage und Haus für Kinder

Grundschule Welzenbachstraße

Erweiterung Grundschule am Amphionpark und Neubau des Sporttrakts