Haus für Kinder Schaffhauserstraße 17

Abbruch und Neubau einer Kinderkrippe

Ansicht Süd
K+P Planungsgesellschaft
Ansicht Haus für Kinder

Baumaßnahme

Abbruch und Neubau einer Kinderkrippe

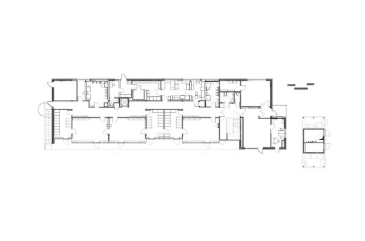
Raumprogramm

6 Gruppen- und 6 Ruheräume, Mehrzweckraum, Personal- und Nebenräume, Küche

Oben im Bild: Ansicht Haus für Kinder
K+P Planungsgesellschaft

Projektdaten

Lageplan
Lageplan

Standort
Schaffhauser Straße 17

Stadtbezirk
Forstenried

Größe
Nutzungsfläche: 951
Quadratmeter
Brutto-Grundfläche: 1.419 Quadratmeter
Brutto-Rauminhalt: 5.531 Kubikmeter

Genehmigte Projektkosten gemäß Stadtratsbeschluss vom 29. November 2017
5,49 Millionen Euro

Baubeginn
IV. Quartal 2017

Baufertigstellung
I. Quartal 2020

Architekt (Objektplanung)
Leistungsphase 1-5: K+P Planungsgesellschaft, München
Leistungsphase 6-9: Füllemann Architekten, München

Planung Freianlagen
Stautner und Schäf Landschaftsarchitekten und Stadtplaner, München

Planungsunterlagen

Dies ist eine Bildergalerie in einem Slider. Mit den Vor- und Zurück-Kontrollelementen kann navigiert werden. Bei Klick öffnet sich ein Modal-Dialog, um das vergrößerte Bild mit weiteren Informationen anzuzeigen.

Aktuelle Meldungen

02. Juni 2020

Die Inbetriebnahme des Haus für Kinder ist erfolgt.

29. Mai 2020

Das fertiggestellte Gebäude wird heute an das Referat für Bildung und Sport übergeben.

13. Februar 2020

Im Außenbereich laufen die Pflasterarbeiten der Zugangswege. Die nächsten Schritte zur Fertigstellung der Außenanlagen sind die Pflasterung der Terrassen an der Südseite, das Anlegen der Grünfläche und des Spielbereichs sowie Pflanzungen und Zaunarbeiten. Die Arbeiten bezüglich dem Innenausbau des Gebäudes sind fast abgeschlossen. Letzte Feinarbeiten finden hier derzeit noch statt.

Dies ist eine Bildergalerie in einem Slider. Mit den Vor- und Zurück-Kontrollelementen kann navigiert werden. Bei Klick öffnet sich ein Modal-Dialog, um das vergrößerte Bild mit weiteren Informationen anzuzeigen.

18. Dezember 2019

Die Fassadenarbeiten sind nahezu abgeschlossen. Die Nut- und Federschalung der Fassade besteht aus Tannenholz und bekleidet das gesamte Gebäude. Während Fensterbänder die Nordfassade bestimmen, zeigt sich die Südfassade als Elementfassade in Holzaluminium.

Die Übereckverglasung im 1. Obergeschoss an der Süd-West Seite verschafft der Fassade eine zusätzliche Betonung und Ausdruck. Hier wird ein Elternwarteraum eingerichtet.

Der Flur im 1. Stock verfügt über eine Holzakustikdecke. Das eingebaute Oberlicht versorgt den Flurbereich mit zusätzlichem Tageslicht. Auf beiden Etagen befinden sich jeweils 3 Gruppenräume, an die jeweils ein Ruheraum angeschlossen ist. Die Räumlichkeiten sind durch die fast bodentiefen Verglasungen der einzelnen Fensterelemente großzügig belichtet.

Im gesamten Gebäude ist der Estrich bereits gegossen und getrocknet. Mit dem Verlegen von Linoleumböden kann jetzt begonnen werden. Die Nassräume für die Kinder verfügen über eine natürliche Belichtung und Belüftung und werden durch farbige Mosaikfließen akzentuiert.

Dies ist eine Bildergalerie in einem Slider. Mit den Vor- und Zurück-Kontrollelementen kann navigiert werden. Bei Klick öffnet sich ein Modal-Dialog, um das vergrößerte Bild mit weiteren Informationen anzuzeigen.

02. Oktober 2019

Im Erdgeschoß werden die Fensterrahmen der Südfassade montiert. Die Unterkonstruktionen für die abgehängten Decken sind bereits montiert. Im Küchenbereich werden die Fliesen verlegt.

Dies ist eine Bildergalerie in einem Slider. Mit den Vor- und Zurück-Kontrollelementen kann navigiert werden. Bei Klick öffnet sich ein Modal-Dialog, um das vergrößerte Bild mit weiteren Informationen anzuzeigen.

30. Juli 2019

Der Rohbau der zweigeschossigen Kinderkrippe ist seit Anfang Juni fertig gestellt. Seither werden die Innenwände in Trockenbauweise errichtet und die Heizungs-, Sanitär- und Elektroleitungen verlegt. Die ersten Fensterelemente sind auf der Baustelle eingetroffen und werden eingebaut. Kreisrunde Oberlichter im Obergeschoss sorgen für zusätzliches Tageslicht und schöne Ausblicke.

Dies ist eine Bildergalerie in einem Slider. Mit den Vor- und Zurück-Kontrollelementen kann navigiert werden. Bei Klick öffnet sich ein Modal-Dialog, um das vergrößerte Bild mit weiteren Informationen anzuzeigen.

18. März 2020

Das Gebäude ist im Inneren bis auf letzte Ausbesserungsarbeiten fertig gestellt . Parallel laufen im Außenbereich die Pflasterarbeiten der Zugangswege.

Die nächsten Arbeiten sind die Pflasterung der Terrassen an der Südseite sowie das Anlegen der Grünflächen und des Spielbereichs, Pflanzungen und Zaunarbeiten.

Ähnliche Artikel

This is a carousel with rotating cards. Use the previous and next buttons to navigate, and Enter to activate cards.

Grundschule St.-Veit-Straße 46

Neubau einer Grundschule mit Sporthalle, Tiefgarage und Freisportflächen

Grund- und Mittelschule Rockefellerstraße 11

Neubau Grundschule und Mittelschule an der Rockefellerstraße 11 _ ehemalige Bernaysstraße 35

Gymnasien Siegfriedstraße und Karl-Theodor-Straße

Zukunft trifft Tradition: Historische Gymnasien umfassend modernisiert

Gymnasium Gmunder Straße

Neubau eines sechszügigen Gymnasiums mit Sporthalle, Tiefgarage und Nebengebäude

Grundschule Emmy-Noether-Straße

Neubau einer Grundschule mit Sporthalle, Tiefgarage und Haus für Kinder

Grundschule Welzenbachstraße

Erweiterung Grundschule am Amphionpark und Neubau des Sporttrakts