Haus für Kinder Martha-Näbauer-Platz 14

Neubau Haus für Kinder

Das Haus für Kinder am Martha-Näbauer-Platz
Peter Schinzler
Haus für Kinder Martha-Näbauer-Platz

Baumaßnahme

Neubau Haus für Kinder

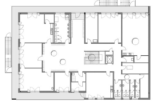
Raumprogramm

5 Gruppen mit 2 Krippen-, 2 Kindergarten- und 1 Hortgruppe, 2 Multifunktionsräume, Mehrzweckraum, Werkraum, Personal- und Nebenräume, Küche

Oben im Bild: Haus für Kinder Martha-Näbauer-Platz
Peter Schinzler

Projektdaten

Lageplan
Lageplan

Standort
Gerberau, Martha-Näbauer-Platz 14

Stadtbezirk
Allach – Untermenzing

Größe
Nutzungsfläche: 873 Quadratmeter
Brutto-Grundfläche: 1.136 Quadratmeter
Brutto-Rauminhalt: 5.008 Kubikmeter

Genehmigte Projektkosten gemäß Stadtratsbeschluss vom 20. November 2014
4,34 Millionen Euro

Baubeginn
III. Quartal 2020

Baufertigstellung
IV. Quartal 2021

Architekt (Objektplanung)
Leistungsphase 1-5: K+P Planungsgesellschaft mbH, München
Leistungsphase 6-9: macro architekten, München

Planung Freianlagen
Chimmo – Landschaftsarchitektur im Alpenraum, Rosenheim

Planungsunterlagen

Dies ist eine Bildergalerie in einem Slider. Mit den Vor- und Zurück-Kontrollelementen kann navigiert werden. Bei Klick öffnet sich ein Modal-Dialog, um das vergrößerte Bild mit weiteren Informationen anzuzeigen.

Aktuelle Meldungen

6. April 2022

Das Gebäude ist fertiggestellt und wurde an das Referat für Bildung und Sport übergeben.
Nach der Möblierung der Einrichtung kann das Haus für Kinder in Betrieb gehen.

Dies ist eine Bildergalerie in einem Slider. Mit den Vor- und Zurück-Kontrollelementen kann navigiert werden. Bei Klick öffnet sich ein Modal-Dialog, um das vergrößerte Bild mit weiteren Informationen anzuzeigen.

Dezember 2021

Bei milder Witterung können ab Februar die Außenanlagen und Terrassen hergestellt werden. 
Die Trockenbauarbeiten sind bis auf die Herstellung der Abhangdecke im Zentralbereich im Erdgeschoß abgeschlossen. Jetzt werden die Kinderbäder und WCs durch die Fliesenleger fertig gestellt.
Die Maler sind mit der Beschichtung der Türzargen beschäftigt.
Für Ende Januar 2022 ist die Montage der Waschbecken und WCs geplant.
Bis dahin sind auch die Bodenbeläge mit Linoleum verlegt.

Dies ist eine Bildergalerie in einem Slider. Mit den Vor- und Zurück-Kontrollelementen kann navigiert werden. Bei Klick öffnet sich ein Modal-Dialog, um das vergrößerte Bild mit weiteren Informationen anzuzeigen.

Juli 2021

Der Rohbau der zweigeschossigen Kindertageseinrichtung, der als Massivbau aus hochwärmedämmenden Ziegeln ausgeführt wurde, ist fertig gestellt.
Das Flachdach ist bereits abgedichtet und muss noch mit einer extensiven Bepflanzung begrünt werden und eine Photovoltaikanlage zur Stromgewinnung erhalten.
Die Fensterelemente sind weitgehend eingebaut, die Innenausbauten gehen zügig voran.
Derzeit werden die Heizungs-, Sanitär- und Lüftungsleitungen verlegt, die Elektroinstallationen werden anschließend folgen.
Nach den Installationsarbeiten sind die Putzarbeiten vorgesehen, danach kann das Gerüst abgebaut und mit den Außenanlagen begonnen werden.

Dies ist eine Bildergalerie in einem Slider. Mit den Vor- und Zurück-Kontrollelementen kann navigiert werden. Bei Klick öffnet sich ein Modal-Dialog, um das vergrößerte Bild mit weiteren Informationen anzuzeigen.

Ähnliche Artikel

This is a carousel with rotating cards. Use the previous and next buttons to navigate, and Enter to activate cards.

Grundschule St.-Veit-Straße 46

Neubau einer Grundschule mit Sporthalle, Tiefgarage und Freisportflächen

Grund- und Mittelschule Rockefellerstraße 11

Neubau Grundschule und Mittelschule an der Rockefellerstraße 11 _ ehemalige Bernaysstraße 35

Gymnasien Siegfriedstraße und Karl-Theodor-Straße

Zukunft trifft Tradition: Historische Gymnasien umfassend modernisiert

Gymnasium Gmunder Straße

Neubau eines sechszügigen Gymnasiums mit Sporthalle, Tiefgarage und Nebengebäude

Grundschule Emmy-Noether-Straße

Neubau einer Grundschule mit Sporthalle, Tiefgarage und Haus für Kinder

Grundschule Welzenbachstraße

Erweiterung Grundschule am Amphionpark und Neubau des Sporttrakts