Haus für Kinder Freienfelsstraße 3

Neubau Haus für Kinder

Gebäudekörper mit gefaltetem Dach
Peter Schinzler
Haus für Kinder Freienfelsstraße

Baumaßnahme

Neubau Haus für Kinder

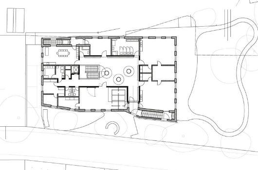
Raumprogramm

4 Gruppenräume davon 1 Krippengruppe und 3 Kindergartengruppen, Multifunktionsraum, Mehrzweckraum, 2 Therapieräume, Personal- und Nebenräume, Küche

Oben im Bild: Haus für Kinder Freienfelsstraße
Peter Schinzler

Projektdaten

Lageplan
Lageplan

Standort
Freienfelsstraße 3

Stadtbezirk
Aubing - Lochhausen - Langwied

Größe
Nutzungsfläche: 716 Quadratmeter
Brutto-Grundfläche: 1.143 Quadratmeter
Brutto-Rauminhalt: 4.122 Kubikmeter

Genehmigte Projektkosten gemäß Stadtratsbeschluss vom 29. November 2017
4,32 Millionen Euro

Baubeginn
III. Quartal 2018

Baufertigstellung
I. Quartal 2020

Architekt (Objektplanung)
lynx architecture, München

Planung Freianlagen
Roos Landschaftsarchitektur, München

Planungsunterlagen

Dies ist eine Bildergalerie in einem Slider. Mit den Vor- und Zurück-Kontrollelementen kann navigiert werden. Bei Klick öffnet sich ein Modal-Dialog, um das vergrößerte Bild mit weiteren Informationen anzuzeigen.

Aktuelle Meldungen

05. August 2020

Der 2-geschossige Neubau liegt parallel zur Freienfelsstrasse. Das gefaltete Dach aus 3 aneinandergereihten Satteldächern nimmt die Maßstäblichkeit der umgebenden Bebauung auf. Die Firstlinien folgen denen des benachbarten Schulgebäudes. Die Faltung setzt sich in der straßenseitigen Fassade fort. Daraus entsteht ein leicht abgewinkelter Fassadenverlauf, der die Länge der Fassade wohltuend gliedert und auch so wieder den Dialog zur gegenüberliegenden, kleinmaßstäblichen Bebauung herstellt.

Im Innenbereich bilden sich durch die großzügige Öffnung der Räume bis in die Dachflächen spannende und immer wieder wechselnde Raumeindrücke. In der Decke über dem Erdgeschoss sorgen drei Lichtkonen mit einer begehbaren Verglasung für Tageslichteinfall bis in die Lobby.

Das großzügige Gebäude bietet zahlreiche anregende Spielmöglichkeiten im Innen- und Außenraum. Insgesamt bietet die Einrichtung Platz für 87 Kinder. Der liebevoll gestaltete Garten lädt zum Entdecken, Ausprobieren und Toben ein.

Dies ist eine Bildergalerie in einem Slider. Mit den Vor- und Zurück-Kontrollelementen kann navigiert werden. Bei Klick öffnet sich ein Modal-Dialog, um das vergrößerte Bild mit weiteren Informationen anzuzeigen.

17. April 2020

Nach der Möblierung der Räumlichkeiten erfolgt die Übergabe des Haus für Kinder an das Referat für Bildung und Sport.

31. März 2020

Die Baufertigstellung des Gebäudes ist erfolgt. Der Fokus liegt jetzt auf den Arbeiten der Außenanlagen.

11. Juli 2019

Das Haus für Kinder in der Freienfelsstraße befindet sich derzeit noch im Rohbau.
Wärmedämmziegel sorgen für ein angenehmes Raumklima. Über den Massivbau ziehen sich 3 Spitzdächer, die den Eindruck einer Reihung erzeugen. Die Dacharbeiten beginnen Mitte August.

Dies ist eine Bildergalerie in einem Slider. Mit den Vor- und Zurück-Kontrollelementen kann navigiert werden. Bei Klick öffnet sich ein Modal-Dialog, um das vergrößerte Bild mit weiteren Informationen anzuzeigen.

Ähnliche Artikel

This is a carousel with rotating cards. Use the previous and next buttons to navigate, and Enter to activate cards.

Grundschule St.-Veit-Straße 46

Neubau einer Grundschule mit Sporthalle, Tiefgarage und Freisportflächen

Grund- und Mittelschule Rockefellerstraße 11

Neubau Grundschule und Mittelschule an der Rockefellerstraße 11 _ ehemalige Bernaysstraße 35

Gymnasien Siegfriedstraße und Karl-Theodor-Straße

Zukunft trifft Tradition: Historische Gymnasien umfassend modernisiert

Gymnasium Gmunder Straße

Neubau eines sechszügigen Gymnasiums mit Sporthalle, Tiefgarage und Nebengebäude

Grundschule Emmy-Noether-Straße

Neubau einer Grundschule mit Sporthalle, Tiefgarage und Haus für Kinder

Grundschule Welzenbachstraße

Erweiterung Grundschule am Amphionpark und Neubau des Sporttrakts