Gymnasium Domagkstraße

Interimsmaßnahme Domagkstraße als Ausweichquartier für das Oskar-von-Miller-Gymnasium

Außenbereich und Gebäude

Baumaßnahme

Interimsmaßnahme Domagkstraße als Ausweichquartier für das Oskar-von-Miller-Gymnasium

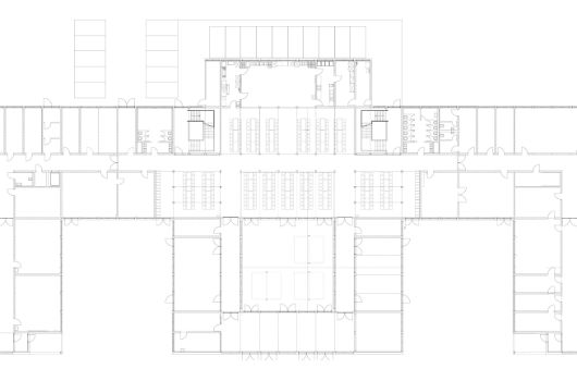
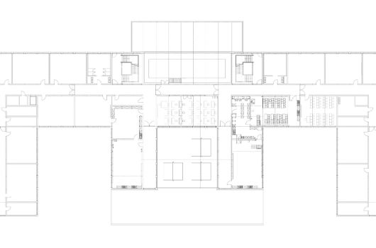
Raumprogramm

Domagkstraße: 5-zügig mit 40 Klassenzimmer, 6 fachtheoretische Unterrichtsräume, 5 Fachlehrsäle, Verwaltung und eine Aula

Projektdaten

Lageplan
Lageplan

Standort
Domagkstraße / Ungererstr. 191

Stadtbezirk
Schwabing - Freimann

Größe
Nutzungsfläche: 5.905,2 Quadratmeter
Bruttogrundfläche: 9.691,9 Quadratmeter
Bruttorauminhalt: 36.020,1 Kubikmeter

Baubeginn
IV. Quartal 2017

Baufertigstellung
III. Quartal 2018

Architekt (Objektplanung)
Leistungsphase 1-5:
BPA Braun Architekten Partnerschaft mbB,
Christoph Maas Architekturbüro GmbH

Leistungsphase 6-9:
BPA Braun Architekten Partnerschaft mbB,
Christoph Maas Architekturbüro GmbH,
IBR Ingenieure GmbH

Planung Freianlagen
realgrün Landschaftsarchitekten Ges. von Landschaftsarchitekten und Stadtplaner mbH, München

Planungsunterlagen

Dies ist eine Bildergalerie in einem Slider. Mit den Vor- und Zurück-Kontrollelementen kann navigiert werden. Bei Klick öffnet sich ein Modal-Dialog, um das vergrößerte Bild mit weiteren Informationen anzuzeigen.

Aktuelle Meldungen

30. August 2019

Die 2018 fertiggestellte Interimsmaßnahme in der Domagkstraße dient als Ausweichquartier für das Oskar-von-Miller-Gymnasium für circa 1000 Schüler.

Die Konstruktion des Gebäudes beruht auf dem Konzept der Modulbauweise. Eine vorgehängte, hinterlüftete Metallfassade verleiht dem Bau einen Festbaucharakter. Um die energetischen Standards einzuhalten werden Kunststofffenster mit 3-fach-
Isolierverglasung gewählt. Zudem schützt ein außenliegender Sonnenschutz mit Metalllamellen die Innenräume im Sommer vor Überhitzung. Das Flachdach der Anlage wird extensiv begrünt.

Dies ist eine Bildergalerie in einem Slider. Mit den Vor- und Zurück-Kontrollelementen kann navigiert werden. Bei Klick öffnet sich ein Modal-Dialog, um das vergrößerte Bild mit weiteren Informationen anzuzeigen.

Ähnliche Artikel

This is a carousel with rotating cards. Use the previous and next buttons to navigate, and Enter to activate cards.

Grundschule St.-Veit-Straße 46

Neubau einer Grundschule mit Sporthalle, Tiefgarage und Freisportflächen

Grund- und Mittelschule Rockefellerstraße 11

Neubau Grundschule und Mittelschule an der Rockefellerstraße 11 _ ehemalige Bernaysstraße 35

Gymnasien Siegfriedstraße und Karl-Theodor-Straße

Zukunft trifft Tradition: Historische Gymnasien umfassend modernisiert

Gymnasium Gmunder Straße

Neubau eines sechszügigen Gymnasiums mit Sporthalle, Tiefgarage und Nebengebäude

Grundschule Emmy-Noether-Straße

Neubau einer Grundschule mit Sporthalle, Tiefgarage und Haus für Kinder

Grundschule Welzenbachstraße

Erweiterung Grundschule am Amphionpark und Neubau des Sporttrakts