Grundschule Hochstraße 29

Errichtung einer 3-zügigen Grundschule mit Räumen für ganztägige Betreuung

Pausenhof
Peter Schinzler
Außenansicht Grundschule

Baumaßnahme

Errichtung einer 3-zügigen Grundschule mit Räumen für ganztägige Betreuung

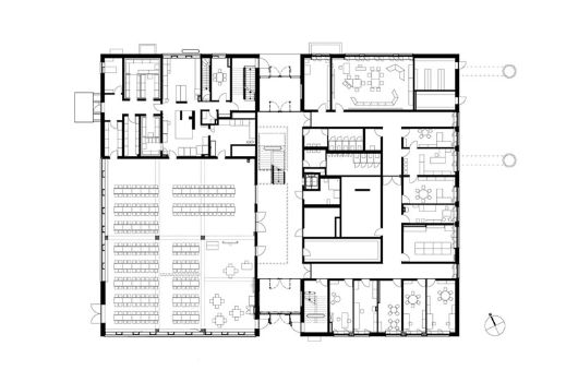
Raumprogramm

12 Klassenzimmer, 6 Ganztagesräume, Fachlehrsaalbereich, Verwaltung, Amtsmeisterwohnung, Mehrzweckraum, Mensa als Versammlungsstätte für den gesamten Schulstandort, Frischkostküche

Oben im Bild: Außenansicht Grundschule
Peter Schinzler

Projektdaten

Lageplan
Lageplan

Standort  
Hochstraße 29

Stadtbezirk
Au-Haidhausen

Größe    
Nutzungsfläche: 3.759 Quadratmeter
Brutto-Grundfläche: 5.965 Quadratmeter
Brutto-Rauminhalt: 25.618 Kubikmeter

Genehmigte Projektkosten gemäß Stadtratsbeschluss vom 10.8.2016
29,0 Millionen Euro

Baubeginn    
I. Quartal 2017

Baufertigstellung
II. Quartal 2019

Architekt (Objektplanung)
Leistungsphase 1-5: bof Architekten, Hamburg
Leistungsphase 6-9: Baumanagement Oswald, München

Planung Freianlagen
EGL Entwicklung und Gestaltung von Landschaft, Landshut

Planungsunterlagen

Dies ist eine Bildergalerie in einem Slider. Mit den Vor- und Zurück-Kontrollelementen kann navigiert werden. Bei Klick öffnet sich ein Modal-Dialog, um das vergrößerte Bild mit weiteren Informationen anzuzeigen.

Aktuelle Meldungen

28. Oktober 2019

Seit Juni diesen Jahres ist die Grundschule an der Hochstraße in Betrieb. Die Großzügigkeit in der Gestaltung der Innen- und Außenräume erzeugt eine angenehme Spiel- und Lernatmosphäre für die Schüler. Die natürliche Belichtung, unter anderem durch zahlreiche Oberlichter, unterstützt zudem die Geräumigkeit und Offenheit des Gebäudes.

Dies ist eine Bildergalerie in einem Slider. Mit den Vor- und Zurück-Kontrollelementen kann navigiert werden. Bei Klick öffnet sich ein Modal-Dialog, um das vergrößerte Bild mit weiteren Informationen anzuzeigen.

7. August 2019

Das Atrium bildet den zentralen Eingangs- und Erschließungsbereich. Hier wurde das Werk der Künstlerin Julie Hayward „Himmel auf Erden“ als Terrazzoarbeit realisiert. In der Mitte erschließt eine freistehende Treppenanlage mit den angeschlossenen Galerien die oberen Lernhäuser.

Die Grundschule befindet sich seit Ende der Pfingstferien 2019 in Nutzung. Die Klassen haben ihre Lernräume bereits eingerichtet. Alle Klassenzimmer verfügen über ein interaktives Whiteboard.

Dies ist eine Bildergalerie in einem Slider. Mit den Vor- und Zurück-Kontrollelementen kann navigiert werden. Bei Klick öffnet sich ein Modal-Dialog, um das vergrößerte Bild mit weiteren Informationen anzuzeigen.

Ähnliche Artikel

This is a carousel with rotating cards. Use the previous and next buttons to navigate, and Enter to activate cards.

Grundschule St.-Veit-Straße 46

Neubau einer Grundschule mit Sporthalle, Tiefgarage und Freisportflächen

Grund- und Mittelschule Rockefellerstraße 11

Neubau Grundschule und Mittelschule an der Rockefellerstraße 11 _ ehemalige Bernaysstraße 35

Gymnasien Siegfriedstraße und Karl-Theodor-Straße

Zukunft trifft Tradition: Historische Gymnasien umfassend modernisiert

Gymnasium Gmunder Straße

Neubau eines sechszügigen Gymnasiums mit Sporthalle, Tiefgarage und Nebengebäude

Grundschule Emmy-Noether-Straße

Neubau einer Grundschule mit Sporthalle, Tiefgarage und Haus für Kinder

Grundschule Welzenbachstraße

Erweiterung Grundschule am Amphionpark und Neubau des Sporttrakts