Grundschule Haimhauserstraße 23
Generalinstandsetzung einer Grundschule
Baumaßnahme
Generalinstandsetzung einer Grundschule
Raumprogramm
Grundschule, 4-zügig mit 2 integrierten 1-fach-Sporthallen, 8-gruppigem Tagesheim sowie 4 Räume für ganztägige Betreuung und Interimsgebäude in zwei Bauabschnitten
Projektdaten
Standort
Haimhauserstraße 23
Stadtbezirk
Schwabing - Freimann
Größe
Nutzungsfläche: 4798,8 Quadratmeter
Brutto-Grundfläche: Bestand ca. 10.000 Quadratmeter, Erweiterung ca. 1.700 Quadratmeter
Brutto-Rauminhalt: Bestand ca. 43.400 Kubikmeter, Erweiterung ca. 7.500 Kubikmeter
Genehmigte Projektkosten gemäß Stadtratsbeschluss vom 01. Oktober 2014
37,44 Millionen Euro
Baubeginn
II. Quartal 2016
Baufertigstellung
III. Quartal 2020
Architekt (Objektplanung)
Leistungsphase 1-5: Karlundp - Gesellschaft von Architekten mbH, München
Leistungsphase 6-9: 1.Bauabschnitt: Karlundp - Gesellschaft von Architekten mbH, München
Leistungsphase 8-9: 2.Bauabschnitt: sellack architekten und ingenieure, München
Planung Freianlagen
NRT - Landschaftsarchitekten BDLA, Stadtplaner & Ingenieure, Marzling
Aktuelle Meldungen
11. Mai 2020
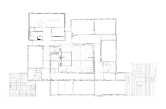
Der ergänzte Neubau an der Haimhauser Straße formiert einen neuen Innenhof für das Schulgebäude und wird mit einer 3-lagigen Kissenkonstruktion mit Stützluftversorgung überdacht. Unter dem Folienkissendach findet die zukünftige Aula ihren Platz. Die ehemaligen Außenfassaden bleiben auch nach der Sanierung in ihrem Charakter erhalten und die Historie des Gebäudes ablesbar. Durch den Anbau und den überdachten Innenhof entsteht zudem ein Ringschluss der historischen Flure.
Die Akustikdecken in den Klassenzimmern sind bereits fertiggestellt. Originalgetreu nachgebaut sind die Kastenfenster der historischen Holzfenster mit historischer Teilung und Profilierung. Die gelben Wandfliesen verleihen dem Raum einen Farbakzent im Bereich der Waschbecken. Ein zu den Fliesen farblich passender Linoleumboden ist verlegt und zum Schutz abgedeckt. Die Mediensäule ist platziert und bereit für den Einbau der Elektro-Objekte. Ein Blick in die Sporthalle zeigt auch hier den Nachbau der historischen Holzfenster. Auf der rechten Seite ist bereits die Unterkonstruktion für die umlaufende Prallwand zu sehen. Der Sportboden ist bis auf den Oberbelag fertiggestellt. Im Flur erkennt man die bauzeitliche Gewölbedecke, die denkmalgerecht saniert wurden.
Im 3.Obergeschoss führen die Gewerke Putz- und Malerarbeiten die Restarbeiten an den historischen Innenhoffassaden durch. Auf dem Flachdach des Neubau lässt sich die Überdachung mittels Folienkissen des Innenhofs besonders gut erkennen und fügt sich angenehm in die historische Dachlandschaft des Schulgebäudes ein. Die Dacheindeckung des Bestands erfolgt mit einer Biberdeckung in gemischter Farbigkeit. Ein Ziergiebel mit historischer Basis und eine neue Wetterfahne komplettieren das historische Erscheinungsbild.
07. August 2019
Das Grundschulgebäude wurde zwischen 1897/1898 errichtet und steht als Einzel- und als Bodendenkmal unter Denkmalschutz. Der viergeschossige, historisierende Jugendstilbau mit Treppengiebeln, einem üppigem Kratzputzdekor und prachtvollen Portal geht auf den Entwurf des Architekten Theodor Fischer zurück.
Seit Mai 2016 wird die Grundschule an der Haimhauser Straße in zwei Bauabschnitten erweitert und generalsaniert. Mit der Generalinstandsetzung werden die bestehenden bautechnischen Mängel und Brandschutzdefizite behoben und durch Umbau und Erweiterung der gewachsene Raumbedarf für Schulbetrieb einschließlich Ganztagsbetreuung gedeckt. Die Baumaßnahme wird abschnittsweise bei laufendem Schulbetrieb durchgeführt.
Dem ersten Bauabschnitt, der bereits im Sommer 2018 fertiggestellt wurde, sind der neu zu erstellende Erweiterungsbau, der Westflügel des Schulgebäudes und das daran angegliederte, niedrigere Pfarrhaus zugeordnet. Dem zweiten Bauabschnitt, der Bestandteil dieses Leistungsverzeichnisses ist, sind der Nord-, Ost- und Südflügel des
Hauptgebäudes mit einer angrenzenden Sporthalle sowie die Überdachung des
Innenhofs mit einem Folienkissendach zugeordnet.